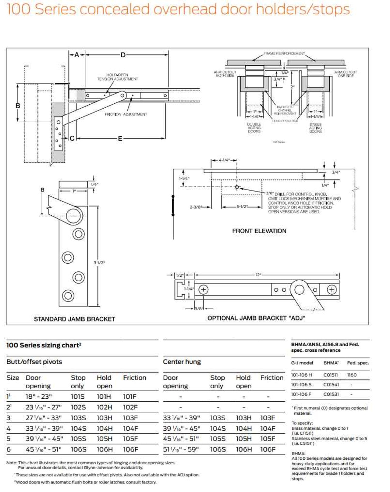
Glynn-Johnson 100 Series - Heavy Duty Concealed Overhead Door Holders/Stops
The 100 Series concealed holders and stops provide the most attractive and reliable heavy-duty door control available. They are designed for installation on virtually all types of doors mounted on conventional type butt hinges, pivots, continuous hinges, swing clear hinges and numerous other specialty hinges. When used in conjunction with many surface-applied door closers, the 100 Series holders and stops provide the most effective control for entrance doors and vestibule doors of all types, as well as heavy or often-used interior doors. The provided templates allow for variable mounting positions, ranging from 85° - 110° of opening.
FEATURES & BENEFITS
- Non-handed design for simple installation and stocking
- Improved compatibility with door closers for better door control and less wear and tear on all of the door hardware
- Compatible with single-and double-acting doors, for ease of installation and stocking
- Available in a heavy gauge brass and 300 Series stainless steel or steel, to offer the broadest range of finishes in the industry to complement any design
- Brass and stainless steel offer the highest resistance to corrosion for a longer-lasting product in a variety of weather conditions
- Other base materials are suitable for normal interior use
MODELS
- 100H Series hold-open model
- 100HP Series internal hold-open model
- 100F Series friction hold-open model
- 100S Series stop-only model
- 100SE Series special stop-only model
RESOURCES
Glynn-Johnson_Overhead_Door_Holders.Stops_Catalog_101401 (allegion.com)
