Glynn-Johnson 81 Series - Heavy Duty Surface Overhead Door Holders/Stops
Regular price
$318.86
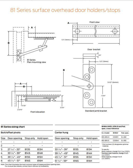
The 81 Series is a surface-mounted holder and stop that offer the most effective shock-absorbing capacity, helping protect doors, frames, and hardware. They provide rugged, heavy-duty door control. The jointed-arm design provides the most effective stop mechanism available. The shock absorber bracket is surface mounted, usually with sex bolts. The jamb bracket is mounted to the stop of the frame, so a minimum of door and frame preparation is required. The 81 Series is compatible with most door closers and features an extremely reliable hold-open function.
FEATURES & BENEFITS
- Non-handed design for simple installation and stocking
- Improved compatibility with door closers for better door control and less wear and tear on all of the door hardware
- Available in a heavy gauge brass and 300 Series stainless steel or steel, offering the broadest range of finishes in the industry
- Brass and stainless steel offer the highest resistance to corrosion for a longer-lasting product in a variety of weather conditions
- Other base materials are suitable for normal interior use
MODELS
- Available in two models:
- 81H Series hold-open model
- 81S Series stop-only model (heavy-duty)
- Options include the angle jamb bracket (J), blade stop shims (SHIM), and pin-in-socket security screw package (SOC)
- There are four simple, standardized sizes for each model to fit different door applications
RESOURCES
Glynn-Johnson_Overhead_Door_Holders.Stops_Catalog_101401 (allegion.com)
